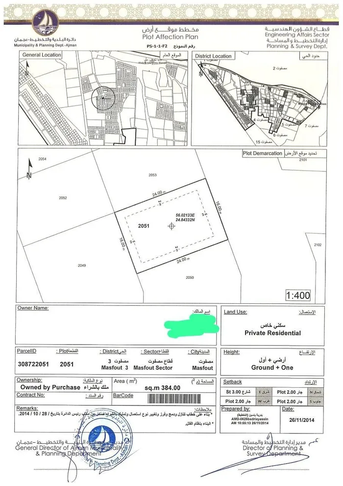
ارض سكنية للبيع في عجمان مصفوت 3 على شارع سيح الزهر قريب من الشارع العام مساحة 384 متر مربع السعر 150 الف الدفع كاش او أقساط

مصفوت, عجمان

درهم 150,000

حول العقار

Residential land for sale in Ajman, Masfout 3, on Saih Al Zaher Street, close to the main street, area 384 square meters, price 150 thousand, payment in cash or installments

تفاصيل مهمة

  • 4133 قدم مربعمساحة العقار

العقار أضيف بواسطة

View agent link